返回
分享

Zoe Lu Design

0.0
(0) 0次僱用
通過身分認證

專家介紹

您好,

本人是室內設計系本科系畢業,畢業後在室內設計業界已有三年經歷,工作期間主要負責的工作內容為:完整圖面繪製、現場監工、工期控管、連絡廠商、材料挑選等。

提供服務:
- 平面圖配置
- 施工圖繪製
- 3D max渲染圖(含建模)
- SketchUp 3D彩圖(含建模)

若有興趣與疑問,歡迎隨時與我聯繫!
LIEN ID:liberal11031
E-mail:lulien0208@gmail.com

照片/影片(20)

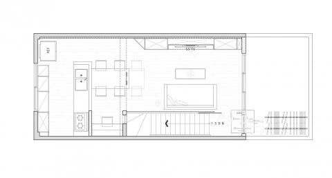
Zoe Lu Design -
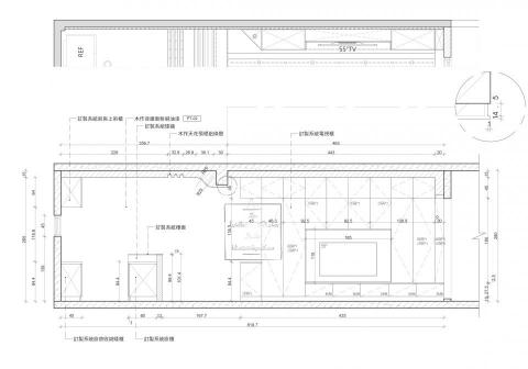
Zoe Lu Design -
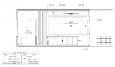
Zoe Lu Design -
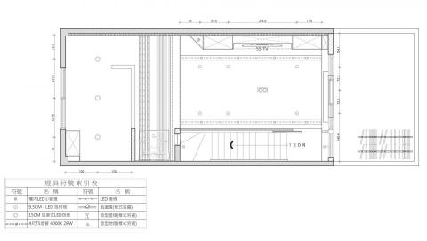
Zoe Lu Design -
Zoe Lu Design -
Zoe Lu Design -
Zoe Lu Design -
Zoe Lu Design -
Zoe Lu Design -
Zoe Lu Design -
Zoe Lu Design -
Zoe Lu Design -
Zoe Lu Design -
Zoe Lu Design -
Zoe Lu Design -
Zoe Lu Design -
Zoe Lu Design -
Zoe Lu Design -
Zoe Lu Design -
Zoe Lu Design -

服務項目

室內設計 3D建模

相關評價

0.0
0 評價

常見問題