返回
分享

旭昇室內裝修有限公司

5.0
(3) 5次僱用
通過身分認證
苗栗縣苗栗市

專家介紹

服務項目
本公司承攬工程皆有投保團險及勞健保
保障雇主及業主雙方安全保障 合法立案經營
服務態度永遠是我們擺第一的理念
1.專業設計規劃 工事前圖面
2.良好施工品質-掌握每一道工法 杜絕產生工程缺失
3.驗收完善-確保功能性需求 方便日後使用
良性與業主溝通各方建議及計畫,有別於一般傳統的統包,未檢討就施作,產生工程缺陷難以彌補,自身由日系公司出來創業,要求的就是職人精神,貫徹落實所有工程,每一場工程都是我們精湛的演出。
1.室內設計規劃、施工
2.機電設計規劃、施工
3.消防設計規劃、施工
4.冷凍空調工程業
5.電器承裝業
6.自來水管承裝業
7.自動控制設備工程業
8.配管工程業
9.拆除及事業廢棄物清運工程
10.人力派遣業

照片/影片(10)

旭昇室內裝修有限公司 - 地磚拆除中
旭昇室內裝修有限公司 - 電燈插座規畫設計圖面
旭昇室內裝修有限公司 - 施工進度表排定
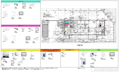
旭昇室內裝修有限公司 - 衛生設備諸元表它
旭昇室內裝修有限公司 - 天花板總合圖
旭昇室內裝修有限公司 - 馬桶濕式安裝施作(放樣步驟)
旭昇室內裝修有限公司 - 臉盆安裝施作(確定溢流孔對正)
旭昇室內裝修有限公司 - 浴缸拆除後(粗底防水施作)
旭昇室內裝修有限公司 - 分電盤結線實務
旭昇室內裝修有限公司 - 收工前確實打掃乾淨

服務項目

搬家 油漆工程 木工施工 載貨運輸服務 大型垃圾回收 泥作/水泥施工 電線裝修 門片安裝 燈具安裝 水管維修 地板施工 門片維修 燈具維修 水龍頭裝修 磁磚修補 磁磚安裝 洗車服務 洗臉盆裝修 窗戶維修 地板維修 庫板隔間

服務時段

星期一
09:00 - 21:00
星期二
09:00 - 21:00
星期三
09:00 - 21:00
星期四
09:00 - 21:00
星期五
09:00 - 21:00
星期六
09:00 - 21:00
星期日
09:00 - 21:00

相關評價

5.0
3 評價

成交案例

(5)
大型垃圾回收
苗栗縣 頭份市
2023-07-01
大型垃圾回收
苗栗縣 竹南鎮
2023-06-20
磁磚修補
苗栗縣 頭份市
2021-03-10
大型垃圾回收
苗栗縣 公館鄉
2021-01-18
搬家
新竹縣 竹北市
2020-12-24

常見問題

1.自我介紹
2.專業背景
3.服務方式
4.收費方式
5.來往客戶
6.案例分享
7.專業建議