返回
分享

寓點設計

0.0
(0) 0次僱用
通過身分認證
新北市新莊區

專家介紹

寓點設計在3D建模及2D製圖領域中,秉持專業精神,致力於提供高品質的室內設計3D圖服務。擁有室內設計乙級技術士證照的人才,善用SketchUp繪製精確的3D圖及施工圖,確保每個細節都完美呈現。我們專注於滿足客戶的設計需求,無論是建模還是圖紙,始終如一,提供最佳的解決方案。

我們的優勢在於良好的溝通能力,能夠配合客戶需求,確保每個項目的進展順利。我們深刻理解客戶的設想,並將其融入到設計中,確保最終結果超越期望。我們的特色服務和靈活性,使我們能夠在激烈競爭中脫穎而出。

我們注重與客戶的每一次合作,力求在每個設計過程中帶給您愉快的體驗。無論項目大小,我們始終以客戶滿意為核心目標,確保每個設計方案都能實現您的理想。

期待與您攜手共創未來,歡迎隨時與我們洽詢,一起打造理想中的空間!

搜尋"寓點設計",看更多作品集。

照片/影片(5)

寓點設計 - 室內空間渲染
寓點設計 - sketchup 3D建模
寓點設計 - Enscape渲染
寓點設計 - 立面施工圖
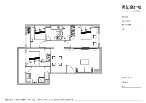
寓點設計 - 空間平面圖

專業證照

服務項目

2D製圖 室內設計3D圖

服務時段

星期一
09:00 - 21:00
星期二
09:00 - 21:00
星期三
09:00 - 21:00
星期四
09:00 - 21:00
星期五
09:00 - 21:00
星期六
09:00 - 21:00
星期日
09:00 - 21:00

相關評價

0.0
0 評價

常見問題

1.自我介紹
2.專業背景
3.服務方式