返回
分享

Z² Studio

0.0
(0) 0次僱用
通過身分認證
提供安心支付
台北市大安區

專家介紹

提供專業線上室內設計服務,包括:
• 住宅空間規劃與新成屋客變設計
• 平面圖、立面圖繪製
• 3D 模型建模與高品質渲染
• 材質、家具與燈光搭配建議

照片/影片(5)

Z² Studio - 咖啡廳設計|建模|渲染
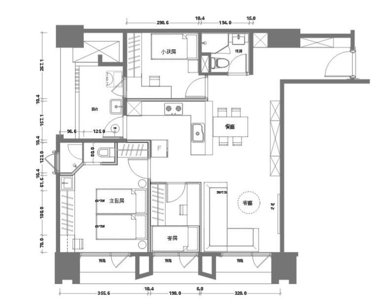
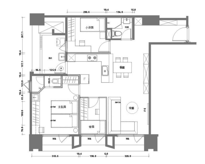
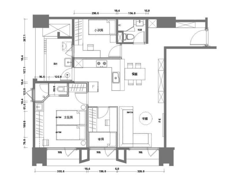
Z² Studio - 住宅設計|建模|渲染
Z² Studio - 住宅設計|建模|渲染
Z² Studio - 住宅設計|建模|渲染
Z² Studio - 休憩空間|建模|渲染

服務項目

室內設計

服務商品

查看全部

服務時段

星期一
20:00 - 24:00
星期二
20:00 - 24:00
星期三
20:00 - 24:00
星期四
20:00 - 24:00
星期五
20:00 - 24:00
星期六
13:00 - 24:00
星期日
13:00 - 24:00

相關評價

0.0
0 評價

常見問題

1.自我介紹
2.服務方式
3.收費方式
4.來往客戶