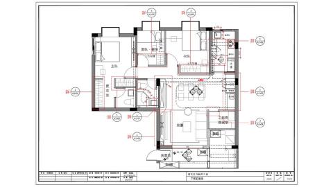
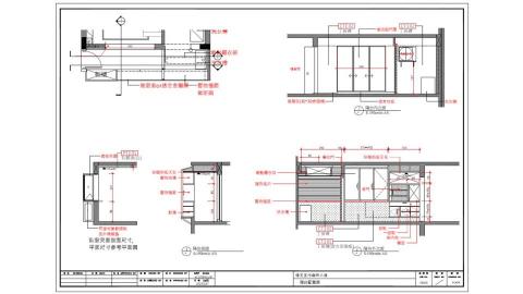
常見問題 1.自我介紹 您好,本人出社會以來皆從事建築設計相關工作,目前服務於建築師事務所,擔任專案建築師一職。 產出:PDF、DWG、3DM等圖檔 設計:以住宅規畫設計為主,熟悉各種身體尺度,並結合美感,提出合理的空間配置、整體規劃。 想利用工作之餘的額外時間接觸並提升室內設計相關經驗,希望有幸為您服務! 2.專業背景 107年淡江建築研究所畢業 111年專門職業及技術人員高等考試 建築師 及格 3.服務方式 S1-1.現場丈量 作品參考 提供成果: *提供.dwg原始檔 (包含梁下高度、重要開口等) *天地壁3D原始模型(SKP、RHINO或其他檔案格式) S1-2.作品參考 *提供客戶過往作品 *解說圖面繪製程度 S1-3.基本設計 *Input(需求、想法): 1.風格、案例照片 2.成員生活習慣 3.格局.. 等等 *Output(基本設計成果): 1.平面配置建議方案*2 (.dwg原始檔) 2.主空間意象透視圖*3/配置 (.jpg、png檔) S2-1.詳細設計 *以基設Output擇一為基礎發展各空間之Layout: 1.平面 (.dwg原始檔) 2.立面 (.dwg原始檔) 3.剖面 (.dwg原始檔) *各向立面材料建議說明(彩圖呈現) 1.說明文件 *系統、木做櫃 1.立面外觀 (.dwg原始檔) 2.剖面內部 (.dwg原始檔) S3-1.設計執行相關圖面 *各系統圖說 1.(拆除) 2.平面總索引 3.立面 4.剖面 5.天花 6.水電..等相關施工圖面 *大樣圖 1.設計重點細部 2.不同材料界面..等 4.收費方式 S1-1.僅現場丈量+基本圖說建立+現況模型:$300/坪 (交通車馬費另計) S1-2.作品參考:如個人檔案介紹,詳談 S1-3.僅基本設計(含丈量):$800/坪 (提供既有DWG者 $600/坪) S1+S2+S3 完整施工圖說 每坪$5000