返回
分享

5.0
(8) 9次僱用
通過身分認證
台北市內湖區

專家介紹

希望利用閒暇時間嘗試接觸不同類型的案子,不只有景觀園藝圖面上的規劃還落實到施工單位的可以一起執行,像是園藝造景、木作、地坪鋪設,歡迎大家來找我洽談~謝謝大家

照片/影片(16)

羽 -
羽 -
羽 -  木平台
羽 - 地磚鋪設&花崗圍邊
羽 - 平板磚鋪設
羽 - 日式造景
羽 -
羽 -
羽 -
羽 -
羽 -
羽 -
羽 -
羽 -
羽 -
羽 -

專業證照

服務項目

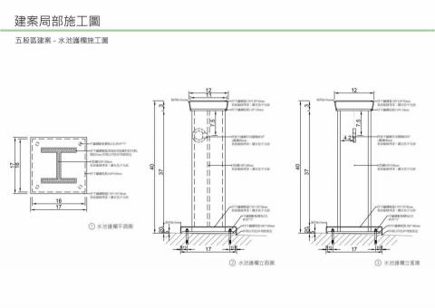
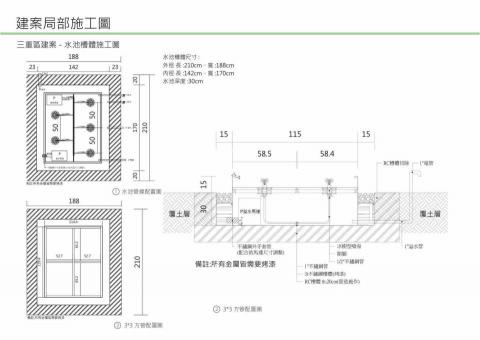
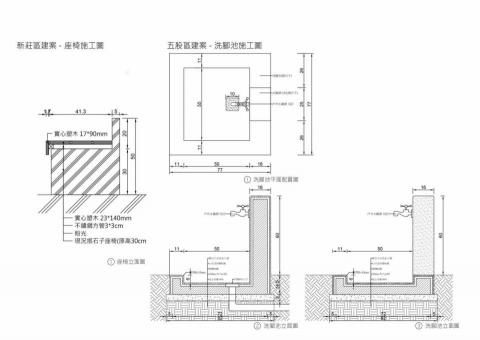
園藝設計 2D製圖 陽台設計

服務時段

星期一
09:00 - 24:00
星期二
09:00 - 24:00
星期三
09:00 - 24:00
星期四
09:00 - 24:00
星期五
09:00 - 24:00
星期六
09:00 - 24:00
星期日
09:00 - 24:00

相關評價

5.0
8 評價

成交案例

(9)
園藝設計
台北市 文山區
2024-11-21
2D製圖
台北市 大安區
2024-08-28
園藝設計
桃園市 蘆竹區
2024-08-26
2D製圖
新北市 新莊區
2024-08-13
2D製圖
新北市 淡水區
2024-07-02
顯示最近9筆

常見問題

1.自我介紹
2.專業背景
3.服務方式
4.收費方式
5.來往客戶
6.案例分享