返回
分享

Abby設計師

0.0
(0) 1次僱用
通過身分認證
新北市新莊區

專家介紹

設計師 Abby
住宅/簡約.現代.北歐.侘寂.低調奢華
建築物室內設計乙級證照
建築物室內裝修工程管理乙級證照

照片/影片(13)

Abby設計師 - 室內設計/住宅案/老屋翻新
Abby設計師 - 室內設計/住宅案/老屋翻新
Abby設計師 - 室內設計/住宅案/新成屋裝修
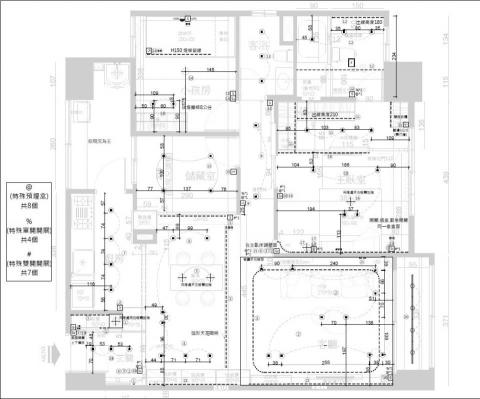
Abby設計師 - 室內設計/住宅案/平面系統圖
Abby設計師 - 平面設計/炸雞店/LOGO、外箱、菜單
Abby設計師 - 平面設計/餐飲店/LOGO、外箱、禮盒、湯包
Abby設計師 - 平面設計/Banner/活動主題
Abby設計師 - 平面設計/IG貼文/簡約清爽風
Abby設計師 - 手繪設計/汽車/客製化紀念禮
Abby設計師 - 手繪設計/改裝車/客製化禮物
Abby設計師 - 手繪設計/超跑/紀念禮物
Abby設計師 - 手繪設計/機車/紀念禮物
Abby設計師 - 手繪設計/手錶/客製化 生日禮

專業證照

服務項目

室內設計 影片剪輯 平面設計 桌球 禮贈品設計

服務時段

星期一
10:00 - 19:00
星期二
10:00 - 19:00
星期三
10:00 - 19:00
星期四
10:00 - 19:00
星期五
10:00 - 19:00
星期六
10:00 - 18:00
星期日
10:00 - 18:00

相關評價

0.0
0 評價

成交案例

(1)
桌球
台北市 中山區
2023-09-09

常見問題

1.自我介紹
2.專業背景
3.收費方式
4.專業建議