返回
分享

TK 空間設計工作室 - 2D製圖

0.0
(0) 0次僱用
台中市西區

照片/影片(7)

TK 空間設計工作室 - 休閒自然風--
在有限的預算下,設計出輕鬆卻有內容的空間,電視主牆虛實設計為此棟1.2樓重點設計,打破制式的客廳格局,達到串連性。
TK 空間設計工作室 - 台中住宅案--
全案以白色石材、灰色木皮作為基調,配上木紋磚修飾溫潤感,過道壓著全室最大樑,利用造型天花板設計化解,並達到吸睛效果,也具有著展示功能。
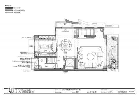
TK 空間設計工作室 - 住宅規劃平面圖--
將最有限的空間發揮到極大值,此住宅案為三代同堂
TK 空間設計工作室 - 住宅規劃平面圖--
本案為透天住宅,三代同堂居住,二樓規劃為客廳、餐廳、廚房設計。
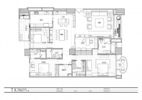
TK 空間設計工作室 - 住宅規劃透天案--
本案為透天住宅,三代同堂居住,此圖為一樓入口處除鞋櫃設計外,規劃了簡單的接待洽談區
TK 空間設計工作室 - 住宅規劃透天案--
本案為透天住宅,三代同堂居住,簡單的線條分割呈現現代又帶點奢華感
TK 空間設計工作室 - 住宅規劃透天案--
本案為透天住宅中的女孩房,坪數不大,但規劃出足夠的收納空間及閱讀桌設計

專家介紹

T K 空間設計理念:
空間本質之於人,
在點、線,面 加與減構思間,
創造屬於 空間與人 最佳的契合度。

在材質與設計手法的細節下,
呈現出質感與溫度的舒適空間,
一種平凡卻又不簡單生活態度與美學產生最佳結合。

設計服務項目
1.提供業主設計需求表,並現場實際尺寸丈量,並繪置現況尺寸圖。
2.繪製平面配置草圖,並溝通業主需求與設計師之設計理念。
3.簽約後即繪製詳細施工圖(平面配置圖、水電及空調配置圖、天花板、地板及照明設備
配置圖、詳細施工之立面及剖面圖)並建議所使用之材料及色彩。
4.供給工程所需之詳圖。
5.協助業主解決施工上之疑難問題。
6.建議工程之各項預算,供業主參考,以利總預算的控制。

服務地區台中、高雄都有據點可以提供設計、繪圖相關服務

服務項目

服務方式 到府服務、線上服務
服務類型 3D圖轉2D圖、水電施工圖、機械繪圖、建築施工圖、其他

2D製圖相關評價

0.0
0 評價

常見問題

1.自我介紹
2.專業背景
3.服務方式
4.收費方式
5.來往客戶
2D製圖
洽談後報價