專家介紹
照片
顧客評價
問與答
返回
分享
游晏明
0.0
(0)
0次僱用
通過身分認證
新北市樹林區
傳送訊息
了解細節
電話諮詢
專家介紹
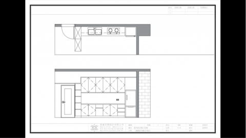
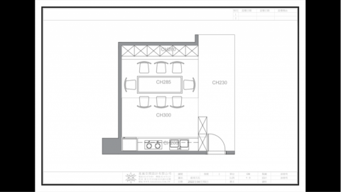
我擁有一年多的製圖經驗,專精於繪製AutoCAD平面系統圖和立面施工圖。
目前轉行全職水電有一年資歷可以處理基礎問題
利用工程空窗賺點外快
顯示更多
照片/影片(5)
服務項目
選擇服務項目
燈具安裝
水龍頭裝修
2D製圖
燈具安裝
水龍頭裝修
2D製圖
服務時段
星期一
18:00 - 22:00
星期二
18:00 - 22:00
星期三
18:00 - 22:00
星期四
18:00 - 22:00
星期五
18:00 - 22:00
星期六
休息
星期日
休息
相關評價
0.0
0 評價
最新發表優先
最高至最低分
最低至最高分
常見問題
1.自我介紹
入職室內設計一年半,可協助畫平面系統圖與立面圖
2.服務方式
AutoCAD 2D
3.收費方式
詳談
邀請報價
PRO360
游晏明
找專家
買服務
成為專家
找案件
游晏明
Toggle navigation
游晏明
.
顯示所有服務
找專家
買服務
找案件
成為專家
登入
查看所有服務
評價紀錄
0.0
0 評價
最新發表優先
最高至最低分
最低至最高分