返回
分享

CHiNji interior design 沁記室內設計

0.0
(0) 0次僱用
通過身分認證
提供安心支付
台北市中山區

專家介紹

讓生活有更好的生活品質,
用設計帶給你新的力量、精神,
打造時尚、舒適、極品的空間饗宴,
可先分享您一開始想要設計方格走向,
彼此互相的討論及溝通,
透過設計角度 實現專於您的完美空間。

照片/影片(6)

CHiNji interior design 沁記室內設計 - 空間丈量規劃 |裝潢工程
商業空間設計 : 酒吧Bar 
說明 : 3D模擬圖
CHiNji interior design 沁記室內設計 - 空間丈量規劃 |裝潢工程
商業空間設計 : 酒吧Bar 
說明 : 3D模擬圖
CHiNji interior design 沁記室內設計 - 空間丈量規劃 |裝潢工程
商業空間設計 : 酒吧Bar 
說明 : 兩點透視空間模擬小圖
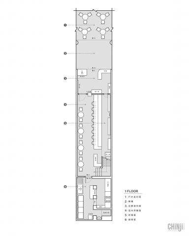
CHiNji interior design 沁記室內設計 - 空間丈量規劃 |裝潢工程
商業空間設計 : 酒吧Bar 
說明 : 1F平面配置規劃
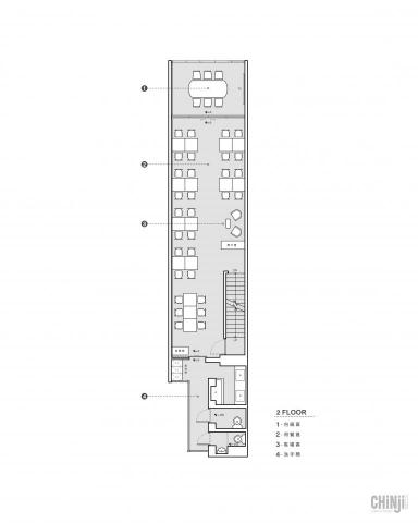
CHiNji interior design 沁記室內設計 - 空間丈量規劃 |裝潢工程
商業空間設計 : 酒吧Bar 
說明 : 2F平面配置規劃
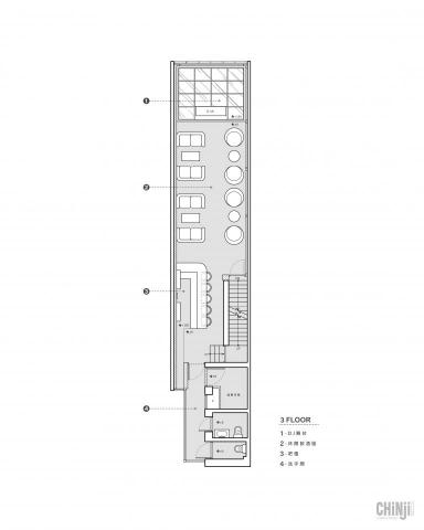
CHiNji interior design 沁記室內設計 - 空間丈量規劃 |裝潢工程
商業空間設計 : 酒吧Bar 
說明 : 3F平面配置規劃

服務項目

室內設計

服務時段

星期一
09:00 - 21:00
星期二
09:00 - 21:00
星期三
09:00 - 21:00
星期四
09:00 - 21:00
星期五
09:00 - 21:00
星期六
09:00 - 21:00
星期日
09:00 - 21:00

相關評價

0.0
0 評價

常見問題

1.自我介紹
2.專業背景
3.服務方式
4.收費方式
5.來往客戶