返回
分享

宇沛實業股份有限公司

0.0
(0) 0次僱用
通過公司認證
提供安心支付
台北市松山區

專家介紹

本公司提供下列服務:

一、專業簡報製作。

二、代位談判合服務。

三、資產開發合建一條龍處理。

四、不動產類資產管理意見諮詢及診斷服務。

五、統包工程(包含規劃設計、施工及設備儀器安裝)。

六、授予不動產的活化及開發專業知識及實務教學。

七、醫療器材及醫療設備的企業消費者之採購及一條龍需求服務:
(1).產品開發與設計:結合臨床需求與創新技術,打造符合市場趨勢的醫材產品。
(2).醫材/醫用設備銷售:本公司也是美國醫療產品大廠總代理,提供經銷及售後服務。
(3).供應鏈管理:建立高效、可靠的供應鏈,確保產品品質與交期穩定。
(4).市場行銷與通路建置:運用精準的市場分析與行銷策略,協助產品快速打開市場,提升品牌知名度。

我們提供您最佳的服務,讓您的權益及效益最大化

選擇我們,是您最睿智的決定!!

照片/影片(4)

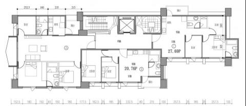
宇沛實業股份有限公司 - 建案規畫平面
宇沛實業股份有限公司 - 3D模擬圖
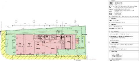
宇沛實業股份有限公司 - 土地開發投資報酬率評估報表
宇沛實業股份有限公司 - 建築敷地平面配置

專業證照

公司名稱:宇沛實業股份有限公司

統一編號:93620650

服務項目

平面設計 統包工程 寫作服務 簡報設計 行銷企劃 經營管理顧問 內容行銷 視覺設計課程

服務時段

星期一
09:00 - 17:00
星期二
09:00 - 17:00
星期三
09:00 - 17:00
星期四
09:00 - 17:00
星期五
09:00 - 12:00
星期六
休息
星期日
休息

相關評價

0.0
0 評價

常見問題

1.自我介紹
2.專業背景
3.服務方式