專家介紹
照片
顧客評價
問與答
返回
分享
Willie
0.0
(0)
0次僱用
通過身分認證
桃園市桃園區
傳送訊息
了解細節
電話諮詢
專家介紹
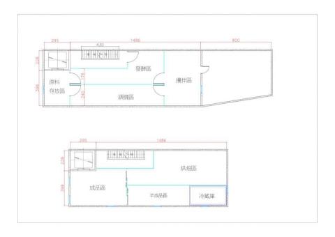
您好,本身有電腦乙級機械製圖證照,繪製與機械相關之圖面。目前從事跟隔間廠房相關的繪圖一職,繪製廠房相關規劃以及修改,擅長AUTOCAD之2D圖面。希望有機會為您服務。
顯示更多
照片/影片(1)
專業證照
電腦輔助機械製圖
服務項目
選擇服務項目
2D製圖
2D製圖
相關評價
0.0
0 評價
最新發表優先
最高至最低分
最低至最高分
常見問題
1.自我介紹
高職製圖科畢業
大學 機械工程系畢業
目前任職廠房繪製及客戶修改圖面
2.服務方式
電話聯繫或電子信箱
北部可當面洽談
3.收費方式
洽談後報價
邀請報價
PRO360
Willie
找專家
買服務
成為專家
找案件
Willie
Toggle navigation
Willie
.
顯示所有服務
找專家
買服務
找案件
成為專家
登入
查看所有服務
評價紀錄
0.0
0 評價
最新發表優先
最高至最低分
最低至最高分