專家介紹
照片
顧客評價
問與答
返回
分享
Sherdiooo
0.0
(0)
0次僱用
通過身分認證
台北市中山區
傳送訊息
了解細節
電話諮詢
專家介紹
提供室內設計平面圖規劃和3D效果圖,系統櫃等專業圖紙。助你了解整體需求後再協助找不同師傅報價,把預算拉到最低。
顯示更多
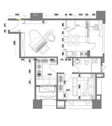
照片/影片(8)
服務項目
選擇服務項目
室內設計
木工施工
天花板設計
3D建模
浴室設計
廚房設計
廁所設計
兒童房設計
室內設計
木工施工
天花板設計
3D建模
浴室設計
廚房設計
廁所設計
兒童房設計
相關評價
0.0
0 評價
最新發表優先
最高至最低分
最低至最高分
常見問題
1.自我介紹
專業設計團隊協助
專業工務配合工程
邀請報價
PRO360
Sherdiooo
找專家
買服務
成為專家
找案件
Sherdiooo
Toggle navigation
Sherdiooo
.
顯示所有服務
找專家
買服務
找案件
成為專家
登入
查看所有服務
評價紀錄
0.0
0 評價
最新發表優先
最高至最低分
最低至最高分