返回
分享

樂.創意設計工作室

0.0
(0) 0次僱用
台北市大安區

專家介紹

工作室為幾位歷經多年的團隊合作建立,歷年獨立接案經驗有數筆,以及3D建模等等...
可以隨時加LINE提供更多分享,值得你信賴!!

照片/影片(5)

樂.創意設計工作室 - 客製化logo設計,此為美容美髮產業!
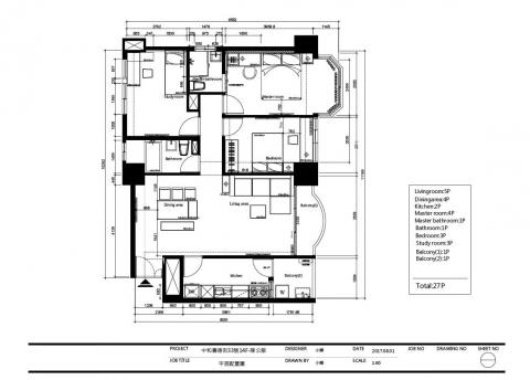
樂.創意設計工作室 - 中和住宅平面配置圖-讓您住的舒適
一系列套圖為您打照
樂.創意設計工作室 - 3D設計建模-sony展場的設計,曾新聞報導~~~
樂.創意設計工作室 - 中和住宅之設計模擬圖
樂.創意設計工作室 - 刻意簡化材料,使用天然木材展現其樸實紋理融於場域,更講究比例均衡,線條在垂直水平線下,勾勒出沉穩氣度風範。走在街道上,成就了眾人目光!

服務項目

室內設計 平面設計 包裝設計 照片後製修圖 3D建模 招牌設計 2D製圖

相關評價

0.0
0 評價

常見問題

1.自我介紹
2.專業背景
3.服務方式
4.收費方式
5.來往客戶
6.案例分享
7.專業建議