返回
分享

景泰設計室內裝修工程 - 展場空間設計

5.0
(7) 4次僱用
通過公司認證
新北市樹林區

照片/影片(77)

景泰設計室內裝修工程 -
景泰設計室內裝修工程 - 設計作品
景泰設計室內裝修工程 - 景泰設計_住宅設計作品影片
景泰設計室內裝修工程 - 健身房
景泰設計室內裝修工程 - 健身房
景泰設計室內裝修工程 - 住家設計
景泰設計室內裝修工程 - 住家設計
景泰設計室內裝修工程 - 住家設計
景泰設計室內裝修工程 - 住家設計
景泰設計室內裝修工程 - 黃小姐台中市北屯區_案例分享
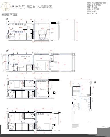
案場: 陳公館住宅設計案
地點: 台中北屯區
屋齡: 新成屋
格局: 透天別墅
面積: 45坪
風格: 現代風
景泰設計室內裝修工程 - 黃小姐台中市北屯區_案例分享
案場: 陳公館住宅設計案
地點: 台中北屯區
屋齡: 新成屋
格局: 透天別墅
面積: 45坪
風格: 現代風
景泰設計室內裝修工程 - 黃小姐台中市北屯區_案例分享
案場: 陳公館住宅設計案
地點: 台中北屯區
屋齡: 新成屋
格局: 透天別墅
面積: 45坪
風格: 現代風
景泰設計室內裝修工程 - 黃小姐台中市北屯區_案例分享
案場: 陳公館住宅設計案
地點: 台中北屯區
屋齡: 新成屋
格局: 透天別墅
面積: 45坪
風格: 現代風
景泰設計室內裝修工程 - 黃小姐台中市北屯區_案例分享
案場: 陳公館住宅設計案
地點: 台中北屯區
屋齡: 新成屋
格局: 透天別墅
面積: 45坪
風格: 現代風
景泰設計室內裝修工程 - 黃小姐台中市北屯區_案例分享
案場: 陳公館住宅設計案
地點: 台中北屯區
屋齡: 新成屋
格局: 透天別墅
面積: 45坪
風格: 現代風
景泰設計室內裝修工程 - 黃小姐台中市北屯區_案例分享
案場: 陳公館住宅設計案
地點: 台中北屯區
屋齡: 新成屋
格局: 透天別墅
面積: 45坪
風格: 現代風
景泰設計室內裝修工程 - 黃小姐台中市北屯區_案例分享
案場: 陳公館住宅設計案
地點: 台中北屯區
屋齡: 新成屋
格局: 透天別墅
面積: 45坪
風格: 現代風
景泰設計室內裝修工程 - 黃小姐台中市北屯區_案例分享
案場: 陳公館住宅設計案
地點: 台中北屯區
屋齡: 新成屋
格局: 透天別墅
面積: 45坪
風格: 現代風
景泰設計室內裝修工程 - 黃小姐台中市北屯區_案例分享
案場: 陳公館住宅設計案
地點: 台中北屯區
屋齡: 新成屋
格局: 透天別墅
面積: 45坪
風格: 現代風
景泰設計室內裝修工程 - 案場 : 孫公館老屋翻新住宅設計案
地點 : 台北市信義區
屋齡 : 中古屋
格局 : 大廈電梯
面積 : 23坪
風格 : 現代古典,簡約風
景泰設計室內裝修工程 - 案場 : 孫公館老屋翻新住宅設計案
地點 : 台北市信義區
屋齡 : 中古屋
格局 : 大廈電梯
面積 : 23坪
風格 : 現代古典,簡約風
景泰設計室內裝修工程 - 案場 : 孫公館老屋翻新住宅設計案
地點 : 台北市信義區
屋齡 : 中古屋
格局 : 大廈電梯
面積 : 23坪
風格 : 現代古典,簡約風
景泰設計室內裝修工程 - 案場 : 孫公館老屋翻新住宅設計案
地點 : 台北市信義區
屋齡 : 中古屋
格局 : 大廈電梯
面積 : 23坪
風格 : 現代古典,簡約風
景泰設計室內裝修工程 - 案場 : 孫公館老屋翻新住宅設計案
地點 : 台北市信義區
屋齡 : 中古屋
格局 : 大廈電梯
面積 : 23坪
風格 : 現代古典,簡約風
景泰設計室內裝修工程 - 案場 : 孫公館老屋翻新住宅設計案
地點 : 台北市信義區
屋齡 : 中古屋
格局 : 大廈電梯
面積 : 23坪
風格 : 現代古典,簡約風
景泰設計室內裝修工程 - 案場 : 孫公館老屋翻新住宅設計案
地點 : 台北市信義區
屋齡 : 中古屋
格局 : 大廈電梯
面積 : 23坪
風格 : 現代古典,簡約風
景泰設計室內裝修工程 - 案場 : 孫公館老屋翻新住宅設計案
地點 : 台北市信義區
屋齡 : 中古屋
格局 : 大廈電梯
面積 : 23坪
風格 : 現代古典,簡約風
景泰設計室內裝修工程 - 案場 : 孫公館老屋翻新住宅設計案
地點 : 台北市信義區
屋齡 : 中古屋
格局 : 大廈電梯
面積 : 23坪
風格 : 現代古典,簡約風
景泰設計室內裝修工程 - 案場 : 孫公館老屋翻新住宅設計案
地點 : 台北市信義區
屋齡 : 中古屋
格局 : 大廈電梯
面積 : 23坪
風格 : 現代古典,簡約風
景泰設計室內裝修工程 - 案場 : 孫公館老屋翻新住宅設計案
地點 : 台北市信義區
屋齡 : 中古屋
格局 : 大廈電梯
面積 : 23坪
風格 : 現代古典,簡約風
景泰設計室內裝修工程 - 案場 : 孫公館老屋翻新住宅設計案
地點 : 台北市信義區
屋齡 : 中古屋
格局 : 大廈電梯
面積 : 23坪
風格 : 現代古典,簡約風
景泰設計室內裝修工程 - 案場 : 京鼎食堂餐廳設計案
地點 : 台北市中正區
屋齡 : 中古屋
格局 : 大廈電梯
面積 : 45坪
風格 : 日式,簡約風
景泰設計室內裝修工程 - 案場 : 京鼎食堂餐廳設計案
地點 : 台北市中正區
屋齡 : 中古屋
格局 : 大廈電梯
面積 : 45坪
風格 : 日式,簡約風
景泰設計室內裝修工程 - 案場 : 京鼎食堂餐廳設計案
地點 : 台北市中正區
屋齡 : 中古屋
格局 : 大廈電梯
面積 : 45坪
風格 : 日式,簡約風
景泰設計室內裝修工程 - 案場 : 京鼎食堂餐廳設計案
地點 : 台北市中正區
屋齡 : 中古屋
格局 : 大廈電梯
面積 : 45坪
風格 : 日式,簡約風
景泰設計室內裝修工程 - 案場 : 京鼎食堂餐廳設計案
地點 : 台北市中正區
屋齡 : 中古屋
格局 : 大廈電梯
面積 : 45坪
風格 : 日式,簡約風
景泰設計室內裝修工程 - 案場 : 京鼎食堂餐廳設計案
地點 : 台北市中正區
屋齡 : 中古屋
格局 : 大廈電梯
面積 : 45坪
風格 : 日式,簡約風
景泰設計室內裝修工程 - 案場 : 京鼎食堂餐廳設計案
地點 : 台北市中正區
屋齡 : 中古屋
格局 : 大廈電梯
面積 : 45坪
風格 : 日式,簡約風
景泰設計室內裝修工程 - 案場 : 京鼎食堂餐廳設計案
地點 : 台北市中正區
屋齡 : 中古屋
格局 : 大廈電梯
面積 : 45坪
風格 : 日式,簡約風
景泰設計室內裝修工程 - 案場 : 京鼎食堂餐廳設計案
地點 : 台北市中正區
屋齡 : 中古屋
格局 : 大廈電梯
面積 : 45坪
風格 : 日式,簡約風
景泰設計室內裝修工程 - 案場 : 京鼎食堂餐廳設計案
地點 : 台北市中正區
屋齡 : 中古屋
格局 : 大廈電梯
面積 : 45坪
風格 : 日式,簡約風
景泰設計室內裝修工程 - 案場 : 京鼎食堂餐廳設計案
地點 : 台北市中正區
屋齡 : 中古屋
格局 : 大廈電梯
面積 : 45坪
風格 : 日式,簡約風
景泰設計室內裝修工程 - 案場 : 京鼎食堂餐廳設計案
地點 : 台北市中正區
屋齡 : 中古屋
格局 : 大廈電梯
面積 : 45坪
風格 : 日式,簡約風
景泰設計室內裝修工程 - 案場 : 京鼎食堂餐廳設計案
地點 : 台北市中正區
屋齡 : 中古屋
格局 : 大廈電梯
面積 : 45坪
風格 : 日式,簡約風
景泰設計室內裝修工程 - 案場 : 京鼎食堂餐廳設計案
地點 : 台北市中正區
屋齡 : 中古屋
格局 : 大廈電梯
面積 : 45坪
風格 : 日式,簡約風
景泰設計室內裝修工程 - 案場 : 京鼎食堂餐廳設計案
地點 : 台北市中正區
屋齡 : 中古屋
格局 : 大廈電梯
面積 : 45坪
風格 : 日式,簡約風
景泰設計室內裝修工程 - 案場 : 京鼎食堂餐廳設計案
地點 : 台北市中正區
屋齡 : 中古屋
格局 : 大廈電梯
面積 : 45坪
風格 : 日式,簡約風
景泰設計室內裝修工程 - 案場 : 京鼎食堂餐廳設計案
地點 : 台北市中正區
屋齡 : 中古屋
格局 : 大廈電梯
面積 : 45坪
風格 : 日式,簡約風
景泰設計室內裝修工程 - 我很喜歡這個案子很有趣,客戶很喜歡我的提設計提案
我本身就愛健身,業主找我的時候我就馬上答應比稿了??
講到設計我就是不想跟別人一樣,我覺得一般健身房就是黑黑黑....然後加很多七彩霓虹燈很像夜店,要不然就加一大推花花草草要文青又文不起來感覺少了什麼?
跟業主溝通後,我想要用街頭pop貨櫃原素來說服業主,大膽嘗試別人沒做過的風格以活潑.歡樂.創造力整合多功能空間瑜珈,TRX,重訓,演講空間
我
景泰設計室內裝修工程 - 我很喜歡這個案子很有趣,客戶很喜歡我的提設計提案
我本身就愛健身,業主找我的時候我就馬上答應比稿了??
講到設計我就是不想跟別人一樣,我覺得一般健身房就是黑黑黑....然後加很多七彩霓虹燈很像夜店,要不然就加一大推花花草草要文青又文不起來感覺少了什麼?
跟業主溝通後,我想要用街頭pop貨櫃原素來說服業主,大膽嘗試別人沒做過的風格以活潑.歡樂.創造力整合多功能空間瑜珈,TRX,重訓,演講空間
我
景泰設計室內裝修工程 - 我很喜歡這個案子很有趣,客戶很喜歡我的提設計提案
我本身就愛健身,業主找我的時候我就馬上答應比稿了??
講到設計我就是不想跟別人一樣,我覺得一般健身房就是黑黑黑....然後加很多七彩霓虹燈很像夜店,要不然就加一大推花花草草要文青又文不起來感覺少了什麼?
跟業主溝通後,我想要用街頭pop貨櫃原素來說服業主,大膽嘗試別人沒做過的風格以活潑.歡樂.創造力整合多功能空間瑜珈,TRX,重訓,演講空間
我
景泰設計室內裝修工程 - 我很喜歡這個案子很有趣,客戶很喜歡我的提設計提案
我本身就愛健身,業主找我的時候我就馬上答應比稿了??
講到設計我就是不想跟別人一樣,我覺得一般健身房就是黑黑黑....然後加很多七彩霓虹燈很像夜店,要不然就加一大推花花草草要文青又文不起來感覺少了什麼?
跟業主溝通後,我想要用街頭pop貨櫃原素來說服業主,大膽嘗試別人沒做過的風格以活潑.歡樂.創造力整合多功能空間瑜珈,TRX,重訓,演講空間
我
景泰設計室內裝修工程 - 我很喜歡這個案子很有趣,客戶很喜歡我的提設計提案
我本身就愛健身,業主找我的時候我就馬上答應比稿了??
講到設計我就是不想跟別人一樣,我覺得一般健身房就是黑黑黑....然後加很多七彩霓虹燈很像夜店,要不然就加一大推花花草草要文青又文不起來感覺少了什麼?
跟業主溝通後,我想要用街頭pop貨櫃原素來說服業主,大膽嘗試別人沒做過的風格以活潑.歡樂.創造力整合多功能空間瑜珈,TRX,重訓,演講空間
我
景泰設計室內裝修工程 - 我很喜歡這個案子很有趣,客戶很喜歡我的提設計提案
我本身就愛健身,業主找我的時候我就馬上答應比稿了??
講到設計我就是不想跟別人一樣,我覺得一般健身房就是黑黑黑....然後加很多七彩霓虹燈很像夜店,要不然就加一大推花花草草要文青又文不起來感覺少了什麼?
跟業主溝通後,我想要用街頭pop貨櫃原素來說服業主,大膽嘗試別人沒做過的風格以活潑.歡樂.創造力整合多功能空間瑜珈,TRX,重訓,演講空間
我
景泰設計室內裝修工程 - 我很喜歡這個案子很有趣,客戶很喜歡我的提設計提案
我本身就愛健身,業主找我的時候我就馬上答應比稿了??
講到設計我就是不想跟別人一樣,我覺得一般健身房就是黑黑黑....然後加很多七彩霓虹燈很像夜店,要不然就加一大推花花草草要文青又文不起來感覺少了什麼?
跟業主溝通後,我想要用街頭pop貨櫃原素來說服業主,大膽嘗試別人沒做過的風格以活潑.歡樂.創造力整合多功能空間瑜珈,TRX,重訓,演講空間
我
景泰設計室內裝修工程 - 我很喜歡這個案子很有趣,客戶很喜歡我的提設計提案
我本身就愛健身,業主找我的時候我就馬上答應比稿了??
講到設計我就是不想跟別人一樣,我覺得一般健身房就是黑黑黑....然後加很多七彩霓虹燈很像夜店,要不然就加一大推花花草草要文青又文不起來感覺少了什麼?
跟業主溝通後,我想要用街頭pop貨櫃原素來說服業主,大膽嘗試別人沒做過的風格以活潑.歡樂.創造力整合多功能空間瑜珈,TRX,重訓,演講空間
我
景泰設計室內裝修工程 - 我很喜歡這個案子很有趣,客戶很喜歡我的提設計提案
我本身就愛健身,業主找我的時候我就馬上答應比稿了??
講到設計我就是不想跟別人一樣,我覺得一般健身房就是黑黑黑....然後加很多七彩霓虹燈很像夜店,要不然就加一大推花花草草要文青又文不起來感覺少了什麼?
跟業主溝通後,我想要用街頭pop貨櫃原素來說服業主,大膽嘗試別人沒做過的風格以活潑.歡樂.創造力整合多功能空間瑜珈,TRX,重訓,演講空間
我
景泰設計室內裝修工程 - 案場 : 李公館漢寶之丘住宅設計案
地點 : 新北市中和區
屋齡 : 新成屋
格局 : 大廈電梯
面積 : 25坪
風格 : 現代簡約風
景泰設計室內裝修工程 - 案場 : 李公館漢寶之丘住宅設計案
地點 : 新北市中和區
屋齡 : 新成屋
格局 : 大廈電梯
面積 : 25坪
風格 : 現代簡約風
景泰設計室內裝修工程 - 案場 : 李公館漢寶之丘住宅設計案
地點 : 新北市中和區
屋齡 : 新成屋
格局 : 大廈電梯
面積 : 25坪
風格 : 現代簡約風
景泰設計室內裝修工程 - 案場 : 李公館漢寶之丘住宅設計案
地點 : 新北市中和區
屋齡 : 新成屋
格局 : 大廈電梯
面積 : 25坪
風格 : 現代簡約風
景泰設計室內裝修工程 - 案場 : 李公館漢寶之丘住宅設計案
地點 : 新北市中和區
屋齡 : 新成屋
格局 : 大廈電梯
面積 : 25坪
風格 : 現代簡約風
景泰設計室內裝修工程 - 案場 : 李公館漢寶之丘住宅設計案
地點 : 新北市中和區
屋齡 : 新成屋
格局 : 大廈電梯
面積 : 25坪
風格 : 現代簡約風
景泰設計室內裝修工程 - 案場 : 李公館漢寶之丘住宅設計案
地點 : 新北市中和區
屋齡 : 新成屋
格局 : 大廈電梯
面積 : 25坪
風格 : 現代簡約風
景泰設計室內裝修工程 - 案場 : 李公館漢寶之丘住宅設計案
地點 : 新北市中和區
屋齡 : 新成屋
格局 : 大廈電梯
面積 : 25坪
風格 : 現代簡約風
景泰設計室內裝修工程 - 案場 : 李公館漢寶之丘住宅設計案
地點 : 新北市中和區
屋齡 : 新成屋
格局 : 大廈電梯
面積 : 25坪
風格 : 現代簡約風
景泰設計室內裝修工程 - 奶茶香氣,溫暖冬日在奶茶侘寂風格,邂逅冬日暖陽

如果你也嚮往奶茶侘寂風格的簡約溫馨,那就讓我來為你實現夢想。

我將帶你領略奶茶侘寂風格的魅力,打造屬於你的冬日暖居。

奶茶侘寂風格的室內設計,通常以奶茶色作為空間的主色調,搭配木質、石材、皮革等天然材質,營造出一種簡約、溫馨、舒適的冬日氛圍。


如果你對奶茶侘寂風格的話,小弟我歡迎詢問歐?

案場 : 胡公館汐止合康雲極設計工程專案
地點
景泰設計室內裝修工程 - 奶茶香氣,溫暖冬日在奶茶侘寂風格,邂逅冬日暖陽

如果你也嚮往奶茶侘寂風格的簡約溫馨,那就讓我來為你實現夢想。

我將帶你領略奶茶侘寂風格的魅力,打造屬於你的冬日暖居。

奶茶侘寂風格的室內設計,通常以奶茶色作為空間的主色調,搭配木質、石材、皮革等天然材質,營造出一種簡約、溫馨、舒適的冬日氛圍。


如果你對奶茶侘寂風格的話,小弟我歡迎詢問歐?

案場 : 胡公館汐止合康雲極設計工程專案
地點
景泰設計室內裝修工程 - 奶茶香氣,溫暖冬日在奶茶侘寂風格,邂逅冬日暖陽

如果你也嚮往奶茶侘寂風格的簡約溫馨,那就讓我來為你實現夢想。

我將帶你領略奶茶侘寂風格的魅力,打造屬於你的冬日暖居。

奶茶侘寂風格的室內設計,通常以奶茶色作為空間的主色調,搭配木質、石材、皮革等天然材質,營造出一種簡約、溫馨、舒適的冬日氛圍。


如果你對奶茶侘寂風格的話,小弟我歡迎詢問歐?

案場 : 胡公館汐止合康雲極設計工程專案
地點
景泰設計室內裝修工程 - 奶茶香氣,溫暖冬日在奶茶侘寂風格,邂逅冬日暖陽

如果你也嚮往奶茶侘寂風格的簡約溫馨,那就讓我來為你實現夢想。

我將帶你領略奶茶侘寂風格的魅力,打造屬於你的冬日暖居。

奶茶侘寂風格的室內設計,通常以奶茶色作為空間的主色調,搭配木質、石材、皮革等天然材質,營造出一種簡約、溫馨、舒適的冬日氛圍。


如果你對奶茶侘寂風格的話,小弟我歡迎詢問歐?

案場 : 胡公館汐止合康雲極設計工程專案
地點
景泰設計室內裝修工程 - 奶茶香氣,溫暖冬日在奶茶侘寂風格,邂逅冬日暖陽

如果你也嚮往奶茶侘寂風格的簡約溫馨,那就讓我來為你實現夢想。

我將帶你領略奶茶侘寂風格的魅力,打造屬於你的冬日暖居。

奶茶侘寂風格的室內設計,通常以奶茶色作為空間的主色調,搭配木質、石材、皮革等天然材質,營造出一種簡約、溫馨、舒適的冬日氛圍。


如果你對奶茶侘寂風格的話,小弟我歡迎詢問歐?

案場 : 胡公館汐止合康雲極設計工程專案
地點
景泰設計室內裝修工程 - 奶茶香氣,溫暖冬日在奶茶侘寂風格,邂逅冬日暖陽

如果你也嚮往奶茶侘寂風格的簡約溫馨,那就讓我來為你實現夢想。

我將帶你領略奶茶侘寂風格的魅力,打造屬於你的冬日暖居。

奶茶侘寂風格的室內設計,通常以奶茶色作為空間的主色調,搭配木質、石材、皮革等天然材質,營造出一種簡約、溫馨、舒適的冬日氛圍。


如果你對奶茶侘寂風格的話,小弟我歡迎詢問歐?

案場 : 胡公館汐止合康雲極設計工程專案
地點
景泰設計室內裝修工程 - 奶茶香氣,溫暖冬日在奶茶侘寂風格,邂逅冬日暖陽

如果你也嚮往奶茶侘寂風格的簡約溫馨,那就讓我來為你實現夢想。

我將帶你領略奶茶侘寂風格的魅力,打造屬於你的冬日暖居。

奶茶侘寂風格的室內設計,通常以奶茶色作為空間的主色調,搭配木質、石材、皮革等天然材質,營造出一種簡約、溫馨、舒適的冬日氛圍。


如果你對奶茶侘寂風格的話,小弟我歡迎詢問歐?

案場 : 胡公館汐止合康雲極設計工程專案
地點
景泰設計室內裝修工程 - 奶茶香氣,溫暖冬日在奶茶侘寂風格,邂逅冬日暖陽

如果你也嚮往奶茶侘寂風格的簡約溫馨,那就讓我來為你實現夢想。

我將帶你領略奶茶侘寂風格的魅力,打造屬於你的冬日暖居。

奶茶侘寂風格的室內設計,通常以奶茶色作為空間的主色調,搭配木質、石材、皮革等天然材質,營造出一種簡約、溫馨、舒適的冬日氛圍。


如果你對奶茶侘寂風格的話,小弟我歡迎詢問歐?

案場 : 胡公館汐止合康雲極設計工程專案
地點
景泰設計室內裝修工程 - 奶茶香氣,溫暖冬日在奶茶侘寂風格,邂逅冬日暖陽

如果你也嚮往奶茶侘寂風格的簡約溫馨,那就讓我來為你實現夢想。

我將帶你領略奶茶侘寂風格的魅力,打造屬於你的冬日暖居。

奶茶侘寂風格的室內設計,通常以奶茶色作為空間的主色調,搭配木質、石材、皮革等天然材質,營造出一種簡約、溫馨、舒適的冬日氛圍。


如果你對奶茶侘寂風格的話,小弟我歡迎詢問歐?

案場 : 胡公館汐止合康雲極設計工程專案
地點
景泰設計室內裝修工程 - 奶茶香氣,溫暖冬日在奶茶侘寂風格,邂逅冬日暖陽

如果你也嚮往奶茶侘寂風格的簡約溫馨,那就讓我來為你實現夢想。

我將帶你領略奶茶侘寂風格的魅力,打造屬於你的冬日暖居。

奶茶侘寂風格的室內設計,通常以奶茶色作為空間的主色調,搭配木質、石材、皮革等天然材質,營造出一種簡約、溫馨、舒適的冬日氛圍。


如果你對奶茶侘寂風格的話,小弟我歡迎詢問歐?

案場 : 胡公館汐止合康雲極設計工程專案
地點
景泰設計室內裝修工程 - 奶茶香氣,溫暖冬日在奶茶侘寂風格,邂逅冬日暖陽

如果你也嚮往奶茶侘寂風格的簡約溫馨,那就讓我來為你實現夢想。

我將帶你領略奶茶侘寂風格的魅力,打造屬於你的冬日暖居。

奶茶侘寂風格的室內設計,通常以奶茶色作為空間的主色調,搭配木質、石材、皮革等天然材質,營造出一種簡約、溫馨、舒適的冬日氛圍。


如果你對奶茶侘寂風格的話,小弟我歡迎詢問歐?

案場 : 胡公館汐止合康雲極設計工程專案
地點

專家介紹

大家好我是
景泰設計William設計總監 從事設計業有15年的實戰經驗,親自操刀設計一線品牌ASUS/遠傳電信/GT電信/寶島眼鏡等~還有住宅設計與施工,受業主肯定。
我們專為服務商業空間,住家設計工程
歡迎諮詢🤗🤗🤗
本公司有專業工程管理證照(認可證字號40EB018596)
景泰設計室內裝修工程行jing_tai_design
網路官網.臉書.賴官網都可找到我們
官網:
https://www.jing-tai-design.com/
🥰溫馨提醒🥰
我知道在這平台太多訊息了,懇請撥一點時間了解我們公司服務內容,會讓你們知道我們的用心跟別家就是不一樣歐🥰

👍可先丈量規劃平面圖與初估報價
設計師到府場刊丈量一趟3600元,如有簽約可免費,感謝支持😅

📣住宅簡易報價
1.住宅設計費(平面,水電,燈具,立面,繪製精細3D,材質,風格,提案)
1坪約4_6千一坪

2.工程費用(坪)
新屋3_5萬/中古屋8_10萬

3.監工費用
約總工程10%-15%(依照專案有所不同)(不含室裝申請)

📣商業空間簡易報價
1.商業空間設計費:依據空間主題複雜度評估設計費約一坪4500-6000元(要看複雜度)

2.工程報價:一般商業空間管線都會重新配管,工程預算抓ㄧ坪5-8萬起

3.監工費用
約總工程10%-15%(依照專案有所不同)(不含室裝申請)

室內設計費用PRO360公佈費用
https://www.pro360.com.tw/price/interior_design

🥰溫馨提醒🥰
1.懇請業主自己抓預算費用要合理,看到別家低於一般行情價要特別注意

2.價格部份,我們的施工品質嚴格把關,價格會合理化公開透明,不會為了消價讓品質扣分,一分錢一分貨很重要。

3.PRO360 為了保護業主公平交易紀錄,提供了聊天室(業主)只要回覆訊息,我們就會被扣2_4千元(跟你們寫預算有差),真的覺得我們不錯又不想我們被扣錢,你們也可以網路搜尋景泰設計就會看到我的網頁了

4..如果看完以上敘述迫不及待想跟我們聯絡的話,歡迎諮詢

😀設計與工程流程😄
電話初步諮詢與預算,說明設計監工費>現場丈量,洽談需求內容>進行平面配置
>初次討論平面配置>確認平面配置後初估工程報價>進行設計簽約>細部平面確認>繪製精細3D圖>進行工程項目報價>工程合約>繪製確認施工圖>施工進度表>進場施工
=========================
🙂溝通諮詢
溝通階段1.初步溝通瞭解資訊2.需求預算規劃3.各階段及服務流程說明4.設計、監工、工程等費用說明
需求規劃1.現場丈量(預售屋另規劃)2.設計風格討論3.需求內容洽談4.執行平面配置與規劃

🙂合約簽訂
設計合約1.平面配置確認2.初估工程總預算3.設計合約簽訂
設計執行1.風格提案2.繪製精細3D3.系統套圖
工程合約1.工程項目報價2.工程合約簽訂3.繪製施工圖

🙂施工交屋
工程施工1.施工進度確認2.專人監工及回報3.依照合約收取各階段費用
完工交屋1.驗收交屋2.收取尾款費用3.售後服務及保固

=========================
FAQ常見問答

Q:你們與其他室內裝修工程有什麼不同
A:我們除了施工工程外,我們還兼具美學設計能力,我們的作品有很多設計規範書,都是我們做的。

Q:這麼保證你們施工品質呢?
A:我們公司在業界15年了,經歷一線品牌嚴格考驗,對於施工品質非常要求,市面上比低價的很多往往為了降低成本品質相對施工品質比較差也比較堪慮,目前市面上還有很多我們的作品,可到現場参觀,住宅比較不方便参觀。

Q:如何與設計公司配合呢?
A:1.設計約程序>現場丈量>需求溝通>繪製平面配置圖>初估工程總預算>確認設計約報價簽約>進行平面圖確認>風格提案確認>精細繪製3D圖確認>完成系統套圖>進行初估報價>完成設計約付款。
2.工程程序>現場丈量>需求溝通>繪製平面配置圖>確認初估報價簽約>再次繪製平面確認施工圖>安排進度表>進行施工>完工確認。(單純只有繪製施工圖,一般收費標準佔總工程費約5-8%費用)(依照專案有所不同)

Q:這麼樣跟設計師溝通,我想要的風格與需求呢?
A:可以收集一些喜歡的空間照片或是影片,寫下你想要的空間氛圍,喜歡的飯店或是不喜歡的事物,還有多跟家庭成員溝通收納等問題,收集好給設計師參考,大大提升設計師規劃理想的空間歐,多溝通讓設計師多了解你們,對未來順利執行案子非常有幫助。

Q:為什麼要監工費與工程管理證照
A:本公司有具備專業工程管理施工證照人員,執行工程時要有經驗豐富的工務掌握工程進度與廠商協調及工程管理,讓整個工程順利完成收尾,幫客戶把關施工品質非常重要的角色,監工費一般收費標準佔總工程費10~15%費用。(包含繪製施工圖與系統套圖)。

Q:工程是給設計師,還是我自己發包呢?
A:自己發包也可以,不過你要花很多時間,很多工班做不出你的預期,導致修改追加糾紛等問題,如果交給設計師當然省去很多問題可以控制預算,施工品質把關,還有售後服務雖然費用上貴一些,這麼算都划算歐。

Q:設計公司繪圖估價要多久時間呢?
A:從丈量到第一次平面配置約7個工作天,確認平面圖後估價預計14個工作天。

Q:施工時間大約多久?
A:一般住宅30坪約45個工作天,商業空間30坪約60個工作天。

Q:我自己搞不清預算這麼辦?
A:預算會影響裝潢內容先詢問設計師,也可以抓出總預算提供給設計師幫你評估是否可以執行或是自己分割預算:例如設計費,工程費,監工費,家電傢俱等費用

Q:擔心被設計師當盤子嗎?
人生有幾次裝潢呢?現在網路發達,查詢價格透明超簡單(不是比便宜就好,魔鬼藏在細節裡)1.一分錢一分貨觀念2.事前溝通項目數量材質標示3.簽訂合約避免糾紛。

Q:為何市面上有些說不用設計費呢?
A:有可能會把設計費加在工程報價或是其他項目。

Q:為何系統櫃公司畫圖都不用費用
A:一般設計公司初期丈量,繪製平面配置
初估報價是不須費用,等確認價格後,才會付訂金,再次修改繪製圖面確認進行工程事項。

Q:為何設計公司不做局部修繕
A:因為局部修繕費用比較高,例如安裝單項物品須要工資或是局部修繕油漆漏水,因為量少成本會很高,客戶比較沒有辦法接受,通常都是針對老客戶做服務為主。

Q:為何設計公司單項採購會比網路貴
A:有可能用大陸貨比價,客戶要把運費,安裝,保固,等現場因素考量進來,這也是客戶比較有爭議的問題,我們都會先告知產品好壞及費用客戶同意再施作。

Q:為何空調,家飾,傢具,家電,設計公司不包含?
A:因為價差很大比較有爭議,家電家具採購須要花較長時間挑選製作清單給客戶確認,一般設計公司比較不會去做,我們公司可以幫客戶採購但須要5%服務費因為人事成本考量,所以我們都會建議傢俱店給客戶參考,或是提供設計師陪同挑選。

Q:我需要申請室內裝修許可證嗎?
A:一般住家可以詢問管委會,也可以上網查詢,商業空間基本上都需要申請,我們有代辦申請室裝,消防,建築結構申請,標準規費費用住宅約6~8萬,商業空間8~10萬,消防許可證跟消防設備施工須另計報價此報價都是由業主付款,不包含在工程內。

Q:為何要簽約呢?
A:保障雙方權益,避免爭議,遵循合約內容項目有依據。

Q:付款方式
A:報價雙方議價完成後,付訂金1成合約
工程約簽約訂金3成,油漆進場完成5成
驗收簽章1成。

Q:你們服務地區有那些?
A:1.台北市:大安區 信義區 中山區 萬華區
2.新北市:新莊區 樹林區 永和區 中和區 板橋區
3.台中市:西區 北區 西屯區
4.桃園市桃園區

專業證照

公司名稱:景泰設計室內裝修工程行

統一編號:85437807

服務項目

服務類型 展位設計+裝潢施工
展場空間位置 室內、室外、其他
展覽內容 零售商品、醫療健康、3C科技、金融服務、電子商務、教育學習、藝術人文、工業製造、其他
客戶預算 20萬元以上、洽談後報價

服務時段

星期一
09:00 - 19:00
星期二
09:00 - 19:00
星期三
09:00 - 19:00
星期四
09:00 - 19:00
星期五
09:00 - 19:00
星期六
09:00 - 19:00
星期日
09:00 - 19:00

展場空間設計相關評價

5.0
7 評價

展場空間設計相關成交案例

(4)
室內設計
台北市 中正區
2022-04-12
室內設計
新北市 板橋區
2021-12-12
室內設計
台中市 北屯區
2021-09-11
室內設計
台中市 西區
2021-07-01

常見問題

1.自我介紹
2.專業背景
3.服務方式
4.收費方式
5.來往客戶
6.案例分享
7.專業建議
展場空間設計
洽談後報價