返回
分享

十蒔設計工作室

0.0
(0) 0次僱用
通過身分認證
台東縣台東市

專家介紹

室內設計系畢業/三年以上正統室內設計公司資歷

小資族辛苦賺錢買房/租屋,想要將空間打造成自己夢寐以求的『家』嗎?
室內設計師永遠都能想到你沒想到的事。

提供建商尺寸圖/自行丈量圖,就能幫你客製化屬於你的空間
平面圖看不懂沒關係,有另外提供3D圖檔讓你一目瞭然。

僅提供設計,不含施工,讓你更有彈性運用寶貴的資金。

只要你有心,我就有耐心替你完成。

對了,商業空間也接受唷!

歡迎各大設計公司外包圖面繪製
CAD代繪-提供手繪圖/相關需求
3D代繪-提供完整平面圖/立面圖/材質說明

*繪圖工具(CAD/Sketch up/V-ray/PotoShop)

*提供線上溝通

照片/影片(12)

十蒔設計工作室 - 新北J宅預售屋-3D圖
十蒔設計工作室 - 新北J宅預售屋-3D圖
十蒔設計工作室 - 新北J宅預售屋-3D圖
十蒔設計工作室 - 新北L宅預售屋-3D圖
十蒔設計工作室 - 新北L宅預售屋-3D圖
十蒔設計工作室 - 新北L宅預售屋-3D圖
十蒔設計工作室 - 新北K宅-3D圖
十蒔設計工作室 - 新北K宅-3D圖
十蒔設計工作室 - 新北K宅-3D圖
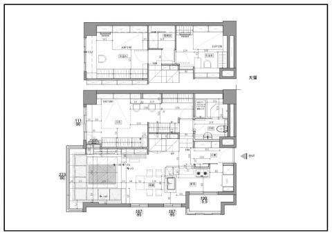
十蒔設計工作室 - 台北L宅-平面設計圖
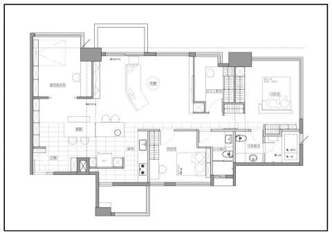
十蒔設計工作室 - 新北W宅-平面設計圖
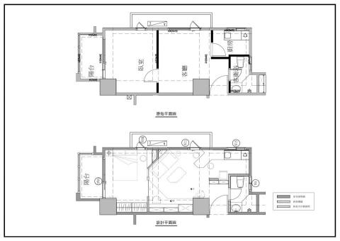
十蒔設計工作室 - 新北H宅-平面設計圖

服務項目

室內設計 平面設計 3D建模 店面設計 2D製圖

相關評價

0.0
0 評價