分享

桃園市蘆竹區林〇姐委託:室內設計需求

電話
林〇姐
案件已認證
有提供電話
地區桃園市 蘆竹區
金額客戶預算:40萬元
其他坪數:自行輸入坪數: 15
4小時前提出
室內設計師 裝潢設計師 室內裝潢設計師

請問您需要的服務為?

設計+裝修工程

您需要室內設計/裝修的空間類別為?

居家住宅

您的房屋類型?

大廈

您的房屋屋齡大約幾年?

新成屋

您是否已經交屋?

已經交屋

您希望設計或改造哪些空間?

客廳
玄關
房間

需要設計/裝修的坪數大小?

自行輸入坪數, 15

您希望的房屋風格? (選填)

現代風格
北歐風格

[選填] 請說明屋況、格局和希望的工程內容

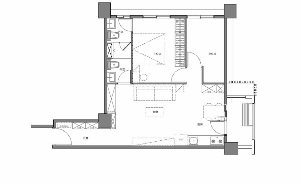
新成屋大廈樓層4樓,兩房一廳,室內17坪,扣掉衛浴廚房約15坪, 輕裝潢 天花板、櫃體需求 櫃檯的部分主要在入口的玄關處鞋櫃、客廳收納、電器收納櫃、主臥衣櫃、次臥不需要做,看預算調整

您需要上傳照片來說明您的需求嗎? (選填)

室內設計案件圖片

您設計/裝修的整體預算為?(不含家電、廚具、活動式家具等費用)

40萬元

還有什麼需要注意的地方嗎?

沒有

您需要服務的地區為何?

桃園市,蘆竹區
您可能也感興趣的案件:
桃園市 蘆竹區
天花板設計
林〇生
桃園市 蘆竹區
小坪數裝潢
林〇恩
桃園市 蘆竹區
天花板設計
高〇姐