分享

新北市板橋區胡〇姐委託:室內設計需求

電話
胡〇姐
案件已認證
有提供電話
地區新北市 板橋區
金額客戶預算:沒有預算想法
其他坪數:自行輸入坪數: 30坪
18小時前提出
室內設計師 裝潢設計師 室內裝潢設計師

請問您需要的服務為?

僅需設計

您需要室內設計/裝修的空間類別為?

居家住宅

您的房屋類型?

大廈

您的房屋屋齡大約幾年?

新成屋

您是否已經交屋?

已經交屋

您希望設計或改造哪些空間?

全室改造

需要設計/裝修的坪數大小?

自行輸入坪數, 30坪

您希望的房屋風格? (選填)

現代風格

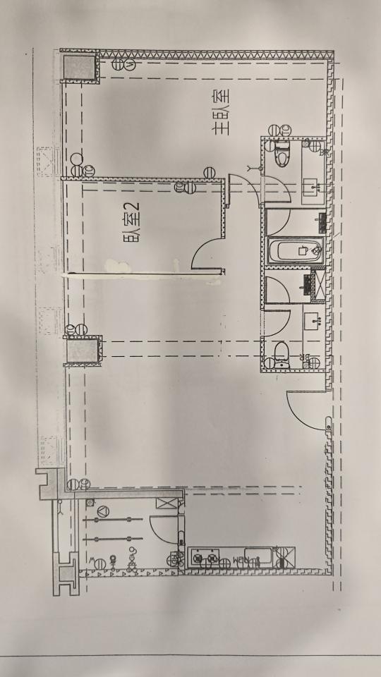
[選填] 請說明屋況、格局和希望的工程內容

要開放式廚房 衣櫃 鞋櫃 沙發 餐桌等

您需要上傳照片來說明您的需求嗎? (選填)

室內設計案件圖片

您有希望設計稿件在何時前完成嗎?

無,依一般製程

您設計/裝修的整體預算為?(不含家電、廚具、活動式家具等費用)

沒有預算想法

還有什麼需要注意的地方嗎?

沒有

您需要服務的地區為何?

新北市,板橋區
您可能也感興趣的案件:
新北市 板橋區
室內裝修許可申請
petxxx
新北市 板橋區
老屋翻新
yulxxx
新北市 板橋區
天花板設計