分享

新竹縣竹北市張〇堯委託:統包工程需求

電話
張〇堯
案件已認證
有提供電話
地區新竹縣 竹北市
時間丈量時間:近期即可丈量
金額客戶預算:70萬
3/29提出

請問您需要裝修的空間類別為?

零售餐飲

您的房屋屋齡大約幾年?

30年以上

可以至現場丈量的時間為?

近期即可丈量

需要裝修的坪數大小?

20坪以下

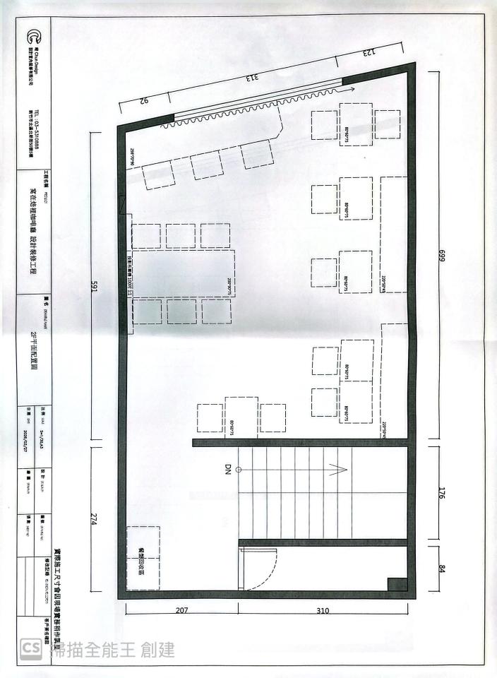
是否有設計圖?

已有設計圖

[選填] 請說明屋況、格局和希望的工程內容

我需要您根據我提供的設計圖施工 我需要再5月底前完工

您需要上傳照片來說明您的需求嗎?

統包工程案件圖片 統包工程案件圖片

您裝修工程的整體預算為?

70萬

還有什麼需要注意的地方嗎?

沒有

您需要服務的地區為何?

新竹縣,竹北市
您可能也感興趣的案件:
新竹縣 竹北市
統包工程
張〇堯
新竹縣 竹北市
室內設計
〇〇姐
新竹縣 竹北市
室內設計
安〇