分享

新北市新莊區chaxxx委託:統包工程需求

電話
chaxxx
案件已認證
有提供電話
地區新北市 新莊區
時間丈量時間:近期即可丈量
金額客戶預算:沒有預算想法
18小時前提出

請問您需要裝修的空間類別為?

其他, 五股工業區56坪辦公廠房

您的房屋屋齡大約幾年?

30年以上

可以至現場丈量的時間為?

近期即可丈量

需要裝修的坪數大小?

50-60坪

是否有設計圖?

已有設計圖

[選填] 請說明屋況、格局和希望的工程內容

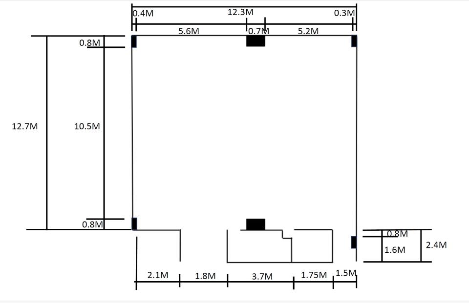
1 室內52坪,原來環氧地坪掉漆,改做固化地坪 2 隔2間約6坪大小的辦公區,3原有廁所,茶水間局部翻新,4 全室電燈,插座規劃

您需要上傳照片來說明您的需求嗎?

統包工程案件圖片

您裝修工程的整體預算為?

沒有預算想法

還有什麼需要注意的地方嗎?

有, 房子是租的,裝修花費要求在刀口上

您需要服務的地區為何?

新北市,新莊區
您可能也感興趣的案件:
新北市 新莊區
室內設計
鄭〇妤
新北市 新莊區
室內設計
劉〇姐
新北市 新莊區
室內裝潢
思〇