分享

宜蘭縣員山鄉黃〇太委託:泥作/水泥施工需求

電話
黃〇太
案件已認證
有提供電話
地區宜蘭縣 員山鄉
其他服務項目:磚牆隔間,磁磚泥作,泥作粉光,衛浴防水/翻新
2026/1/4提出
水土師傅 水泥工 泥作師傅

您需要的泥作/水泥施工服務為?

磚牆隔間
磁磚泥作
泥作粉光
衛浴防水/翻新

您需要的磁磚施工範圍為?

兩者都需要

您遇到的問題是?

其他, 空老屋翻新

此項施工有需要高空作業嗎?

不需要高空作業

您需要上傳照片來描述情況嗎? (選填)

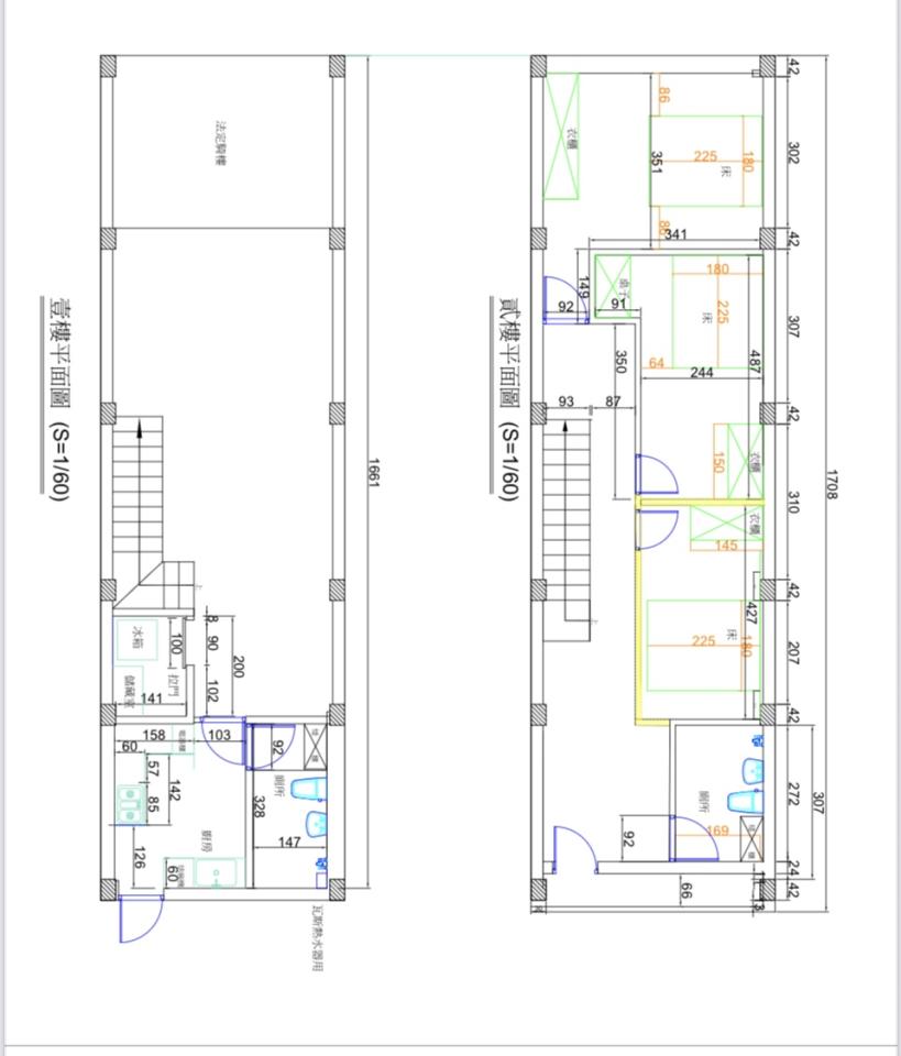
泥作/水泥施工案件圖片

請簡單描述您需要的工程內容(選填)

宜、二樓厠所重做

需要施工的面積大約為?

需要專家協助測量

什麼時間方便服務?

皆可討論

還有什麼需要注意的地方嗎?

沒有

您需要服務的地區為何?

宜蘭縣,員山鄉
您可能也感興趣的案件:
宜蘭縣 員山鄉
園藝維護
李〇連
宜蘭縣 員山鄉
整地
褚〇鎧
宜蘭縣 羅東鎮
園藝維護
駱〇