分享

台北市內湖區社〇〇〇姐委託:室外無障礙設施需求

電話
社〇〇〇姐
案件已認證
有提供電話
地區台北市 內湖區
其他施作場域:其他: 社區大樓門口
裝潢接案

您需要何種服務?

無障礙斜坡
室外無障礙扶手

需要拆除舊有設備嗎?

不需要

您的施作場域為?

其他, 社區大樓門口

您需要上傳照片讓專家更了解現場狀況嗎?(選填)

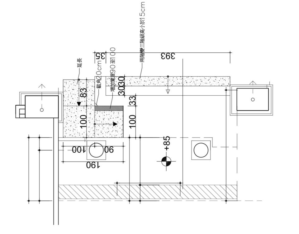
室外無障礙設施案件圖片 室外無障礙設施案件圖片 室外無障礙設施案件圖片

什麼時間方便服務?

星期一 上午

還有什麼需要注意的地方嗎?

沒有

您需要服務的地區為何?

台北市,內湖區
您可能也感興趣的案件:
台北市 內湖區
鋼筋外露處理
Glaxxx
台北市 內湖區
拆除工程
阿〇
台北市 內湖區
消防工程
mayxxx