分享

系統櫃訂製

電話
陳〇琦
案件已認證
有提供電話
地區台北市 中山區
金額客戶預算:一萬到五萬元
4小時前提出
木工 裝潢設計

需要訂製系統櫃的空間為?

辦公場域

您想要訂製哪種系統櫃呢?

廚房系統櫃

您是否有希望使用的板材?

請專家建議

[選填] 簡單描述您的需求,讓師傅更了解

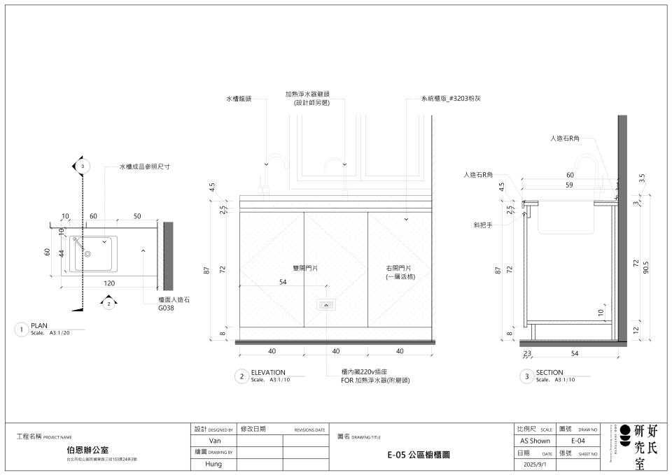
1個茶水間系統櫃,包含水槽及龍頭,尺寸如圖

您需要上傳想要的系統櫃照片或設計圖讓專家瞭解您的需求嗎?

系統櫃訂製案件圖片

是否可至現場丈量?

近期即可丈量

什麼時間方便至現場丈量?

皆可討論

您的施作預算大約是?

一萬到五萬元

還有什麼需要注意的地方嗎?

沒有

您需要服務的地區為何?

台北市,中山區
您可能也感興趣的案件:
台北市 中山區
系統櫃訂製
余〇屏
台北市 中山區
家具組裝
Chexxx
台北市 中山區
家具維修
游〇姐