分享

統包工程

電話
羅〇生
案件已認證
有提供電話
地區桃園市 龜山區
時間丈量時間:近期即可丈量
金額客戶預算:沒有預算想法
23小時前提出

請問您需要裝修的空間類別為?

居家住宅

您的房屋類型?

電梯大廈

您的房屋屋齡大約幾年?

新成屋

可以至現場丈量的時間為?

近期即可丈量

您希望裝修的空間為?

玄關
房間

需要裝修的坪數大小?

自行輸入坪數, 14

是否有設計圖?

已有設計圖

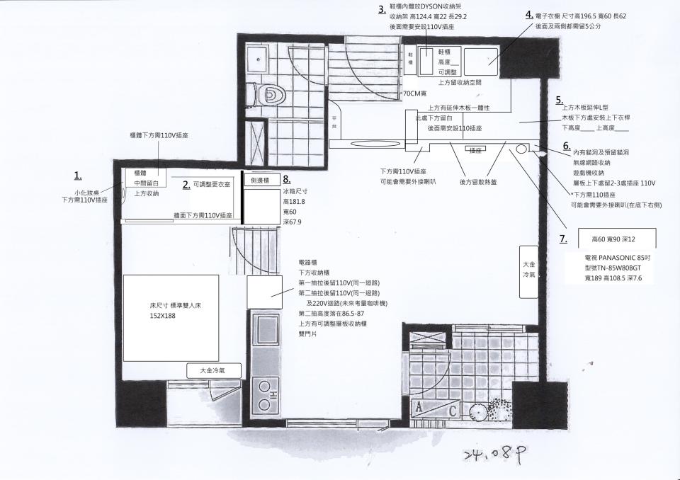
[選填] 請說明屋況、格局和希望的工程內容

2+1變1+1 海島型超耐磨換卡扣人字拼 主臥變更們位置 內有格更衣間 玄關做二進次 安裝全室除濕

您需要上傳照片來說明您的需求嗎?

統包工程案件圖片

您裝修工程的整體預算為?

沒有預算想法

還有什麼需要注意的地方嗎?

有, 有養貓

您需要服務的地區為何?

桃園市,龜山區
您可能也感興趣的案件:
桃園市 龜山區
天花板設計
陳〇緹
桃園市 龜山區
統包工程
李〇姐
桃園市 龜山區
室內設計