分享

新北市板橋區絕〇〇〇仁委託:室內設計3D圖需求

電話
絕〇〇〇仁
案件已認證
有提供電話
地區新北市 板橋區
其他服務內容:3D建模與3D渲染皆需要
其他3D圖類型:多角度3D圖,45度俯視3D圖,立面施工圖

請問您的身份是?

屋主

需要的服務為?

3D建模與3D渲染皆需要

單一空間需要何種3D圖?

多角度3D圖
45度俯視3D圖
立面施工圖

需要繪製的坪數?

30-50坪

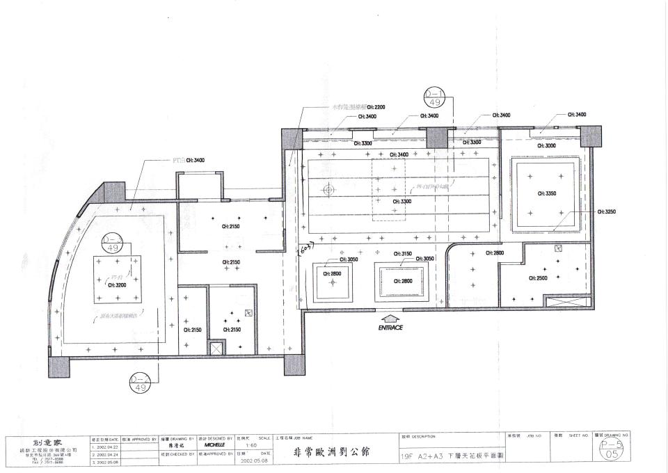
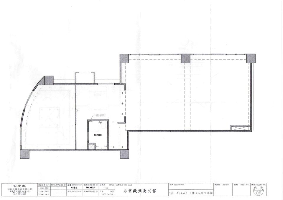
是否有平面圖/立面圖?

有平面圖

需要上傳平面/立面設計圖或設計範例協助專家了解您的需求嗎?

室內設計3D圖案件圖片 室內設計3D圖案件圖片

交件類型為?

一般件

您希望在哪裡接受服務?

我指定的地點
電話或線上服務

還有什麼需要注意的地方嗎?

沒有

您需要服務的地區為何?

新北市,板橋區
您可能也感興趣的案件:
新北市 板橋區
統包工程
莊〇生
新北市 板橋區
統包工程
吳〇毅
新北市 板橋區
室內裝潢
賴〇君