分享

電線裝修

電話
Fraxxx
案件已認證
有提供電話
地區高雄市 楠梓區
其他客戶需求:更換現有的電器與線路
3小時前提出
水電技師 水電工 水電師傅

您需要什麼服務?

更換現有的電器與線路

哪些設備需要裝修或更換?

開關
插座
線路/迴路
接地線
電源總開關
電表
斷路器面板或配電箱
網路/電話

這些設備是在室內還是戶外?

室內

您需要上傳照片讓專家更瞭解情況嗎? (選填)

電線裝修案件圖片 電線裝修案件圖片 電線裝修案件圖片 電線裝修案件圖片

[選填] 簡單說明您的需求或遇到的問題

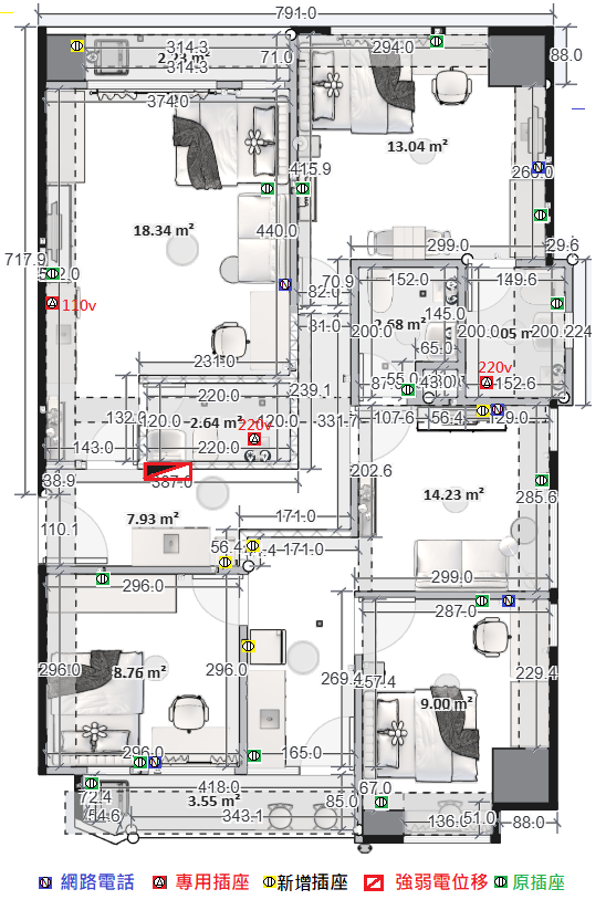
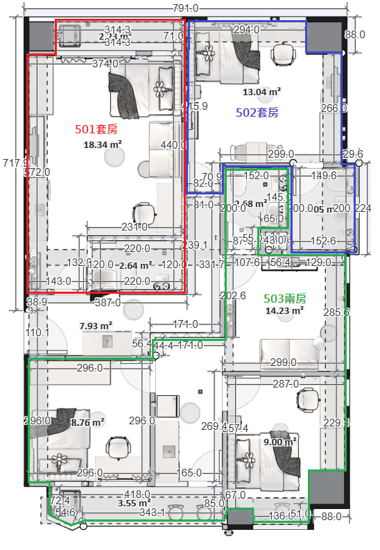
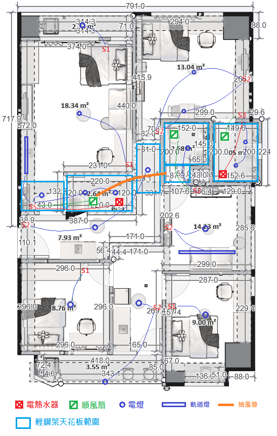
總開關走天花板位移到公用走到區,全室電線更新,糞管位移+新作廁所,衛浴設備安裝,新增飲水機進出水路

什麼時間方便服務?

皆可討論

還有什麼需要注意的地方嗎?

沒有

您需要服務的地區為何?

高雄市,楠梓區
您可能也感興趣的案件:
高雄市 楠梓區
拉網路線
張〇仁
高雄市 楠梓區
電線裝修
梁〇智
高雄市 楠梓區
通水管
亨〇〇〇)