分享

廁所隔間

電話
稻〇〇〇傑
案件已認證
有提供電話
地區台北市 萬華區
其他隔間數量:11-20個
2025/10/23提出

搶先接洽

請問需要廁所隔間(搗擺)的場所類型為?

公共場所

需要哪些類型的隔間?

一般廁所隔間

預計隔間的總數量約為?

11-20個

您有需要向專家購買並安裝馬桶嗎?

不需要

您可上傳平面圖、空間照片、希望的隔間樣式等,讓專家更了解

廁所隔間案件圖片 廁所隔間案件圖片

[選填] 簡單補充說明您的工程需求

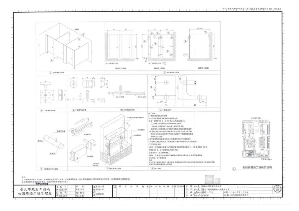
施工規範: (一)熱固性樹脂板廁所隔間 1.本工程採用熱固性樹脂板浴廁隔間系列 2.每一隔間寬900~1200mm,深度1500mm 以上,門板約700mm,立柱採19mm厚,門板採 13mm厚,中間隔板採13mm厚,一體成型不得有 按链,果色心材雙面實心之熟固性樹脂板,表面採数呈面處理 3.關座與立柱之固定接合件採隱藏式設計,所有五金国定件均需 固定於立柱後方,其正面不得有五金固定件,不嘯鍋賜板板克度 依現場尺寸訂製· 4.施工廠商需等待擋面,天花,地材及管線完工後,方可進場施工 5.所有材料,顏色及配件,施工前須經樂主,建築師審核認可,方可進場施工 (二)五金材質說明: 1,敛錬:採不鏽鋼材質,重力式回歸餃狭,可調整門扇微開15~20度,承重30KG。 2.門鎖及手把:採不繡鋼材質,具顯示功能。 3.L型固定片:採不鏽鋼材質 4.腳座:内座-採2mm#304不锈鋼製品,具調整水平功能,外座-採不錯鋼材質。 5.掛衣鉤:採不鏽鋼材質

還有什麼需要注意的地方嗎?

沒有

您需要服務的地區為何?

台北市,萬華區
您可能也感興趣的案件:
台北市 萬華區
拆除工程
翁〇生
台北市 萬華區
拆除工程
呂〇姐
台北市 萬華區
拆除工程