分享

拆除工程

電話
Fraxxx
案件已認證
有提供電話
地區高雄市 楠梓區
其他拆除項目:RC/磚牆拆除
2025/10/22提出
粗工 裝潢工 室內設計工作

您需拆除的空間所在樓層為?

2-5樓

您需要拆除的空間有沒有電梯?

有電梯

您需要的拆除的項目有哪些?

RC/磚牆拆除

此項施工有需要高空作業嗎?

不需要高空作業

您需要拆除的空間坪數大約為?

小於10坪

您需要上傳照片讓專家更瞭解情況嗎? (選填)

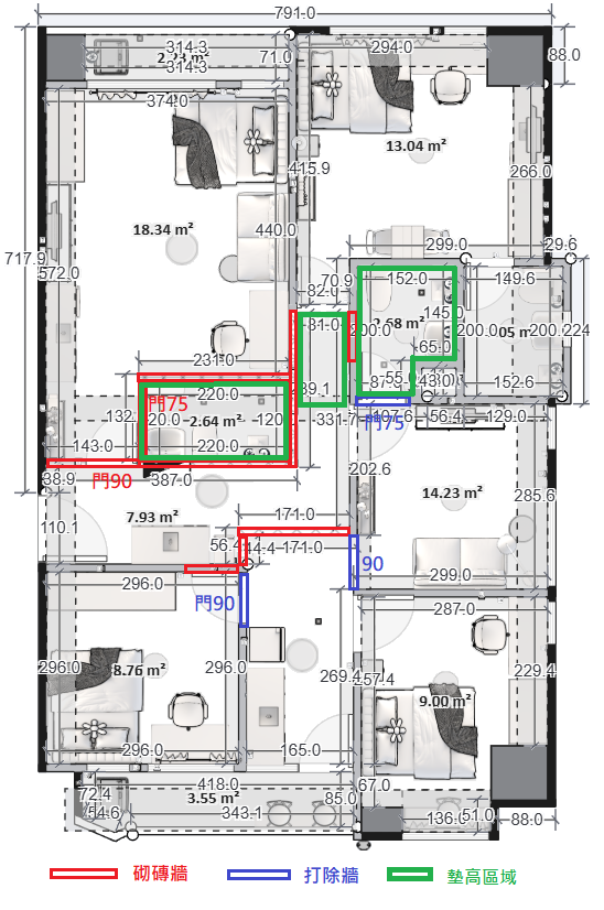
拆除工程案件圖片

除拆除工程外,是否需要其他服務?

僅需要拆除工程

[選填] 簡單描述您的工程需求

樓板高度276公分,打門洞為主需要先切牆再打,廁所那間門洞有管路,還要拆除一組250公分櫥櫃

什麼時間方便服務?

皆可討論

還有什麼需要注意的地方嗎?

有, 預計可動工期11/6以後

您需要服務的地區為何?

高雄市,楠梓區
您可能也感興趣的案件:
高雄市 楠梓區
拆除工程
林〇生
高雄市 楠梓區
鑽孔切割
Barxxx
高雄市 楠梓區
消防工程
耀〇〇曾