木工接案
木工工作
木工師傅
您需要哪些木作服務?
木作天花板
其他, 如果可以希望也能看系統櫃
其他, 如果可以希望也能看系統櫃
請問要施作的房屋為?
現居住房屋
您對您需要訂製的項目有初步的構想嗎?
我有初步的設計構想
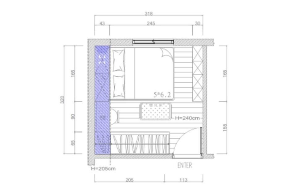
[選填] 簡單補充說明您需要施作的數量及細節
一間臥房要拆掉舊有的天花版重做
您需要上傳照片讓專家瞭解您的需求嗎? (選填)

您的施作預算為?
10萬-25萬
什麼時間方便服務?
皆可討論
還有什麼需要注意的地方嗎?
沒有
您需要服務的地區為何?
台北市,大同區