
1/3
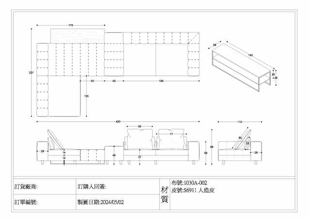
家具類製圖
尚無評價
最快可預約時間 今日
$ 350
商品資訊
方案
專家資訊
評價
付款方式與其他
線上服務
透過網路或電話提供服務
對訂製木工家具有一定了解,另對訂製沙發及訂製家具金屬類也都有些微了解
方案
簡單難度家具圖面繪製
會評估複雜程度決定價格,並提供3次的免費小修改
總額
$ 350
中等難度家具圖面繪製
會評估複雜程度決定價格,並提供3次的免費小修改
總額
$ 450
困難難度家具圖面繪製
會評估複雜程度決定價格,並提供3次的免費小修改
總額
$ 550
專家資訊

Alvin
尚無評價
身分認證
安心支付
任職家具店 CAD2D家具製圖與家具結構等有一定了解 歡迎家具置圖需求的業主詢問
評價
0.0
尚無評價

Alvin
可與專家聯絡服務細項