
1/2
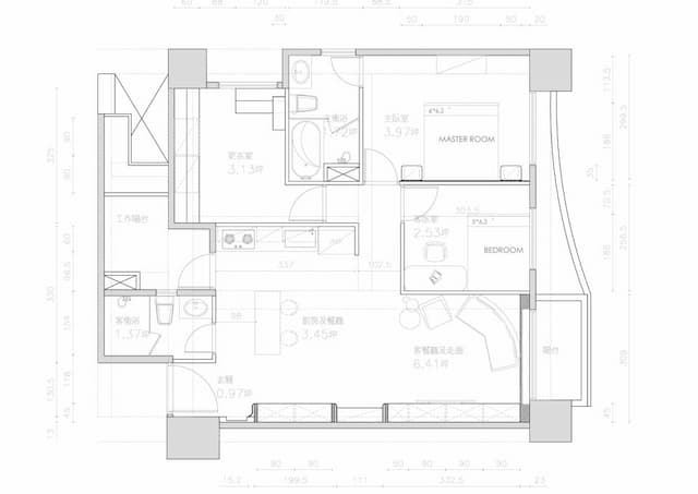
平面配置圖
尚無評價
僅需設計
$ 4,500
商品資訊
專家資訊
評價
付款方式與其他
到府服務
台中市中區、東區、南區、西區、北區、北屯區、西屯區、南屯區、太平區、大里區、霧峰區、烏日區、豐原區、潭子區、大雅區
包含現場丈量、簡報。
專家資訊

小艾同學 個人工作室
尚無評價
身分認證
安心支付
目前是屬於公司菜鳥設計師,平常就是接接公司的案子及其他接案。工作室就是在哪裡都可以開始專注上班。優點是細心、記性好跟完美主義的強迫症。
評價
0.0
尚無評價

小艾同學 個人工作室
可與專家聯絡服務細項