
1/1
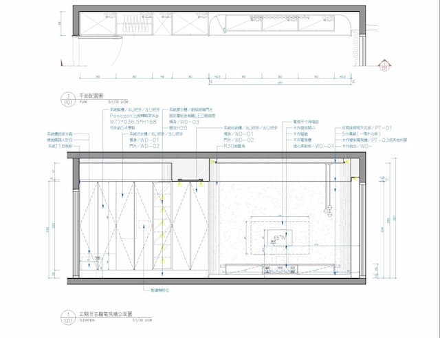
立面剖面設計費(每坪)
尚無評價
僅需設計
最快可預約時間 2026/03/20
$ 2,500
商品資訊
專家資訊
評價
付款方式與其他
到府服務
基隆市全區 / 台北市全區 / 新北市全區
各項立面設計,限修改三次。
專家資訊

Maureen室內裝修設計工程/個人接案
尚無評價
身分認證
安心支付
我是專注於住宅空間設計的室內設計師,擁有豐富的設計經驗,熟悉從概念規劃到落地執行的全流程操作。多年的實務累積,讓我在空間規劃、美學搭配與實用功能設計方面具備高度的專業能力。
在服務過的案子中,我特別擅長以下幾個領域:
量身定制設計方案:針對業主的需求與生活方式,打造專屬的空間設計,兼具美觀與實用性。
社區型設計經驗:曾在單一社區內服務多達 9 戶業主,具備高效率溝通與協調的能力,能快速整合不同需求。
空間細節把控:從材質選用到燈光配置,細緻處理每一個設計細節,確保呈現出最佳效果。
預算與施工管理:在兼顧業主預算的前提下,優化設計方案,並協助業主有效管理施工流程。
此外,我注重與業主的耐心溝通,善於傾聽並提出專業建議,確保每一個設計環節都能與業主的需求完美契合。我相信,專業設計師不僅要提供技術服務,更要成為業主實現理想家的夥伴。
無論是新成屋設計、老屋翻修,還是小坪數空間規劃,我都能提供全方位的設計解決方案,讓每位業主的居家空間都能成為他們最期待的模樣。
評價
0.0
尚無評價

Maureen室內裝修設計工程/個人接案
可與專家聯絡服務細項